Pag-Mandre, novogradnja apartman 41,76m2, 1.red do mora, BEZ PROVIZIJE ZA KUPCA!CA!
Značajke
Vrsta nekretnine:
Stan
Površina (m²):
41.76
Broj etaža:
Jednoetažni
Broj soba:
2
Grijanje:
Sustav grijanja, klimatizacija i ventilacija
Energetski certifikat:
A+
Parking:
Godina izgradnje:
2026
Renovirano:
Opis
Posredujemo pri prodaji luksuznog apartmana površine 41,76m2 u stambenom objektnu na dva kata, prvi red do mora, u pitoresknom naselju Mandre na otoku Pagu – idealna nekretnina za one koji traže mir, komfor i dodir s prirodom.
Apartman je u sklopu ekskluzivne novogradnje s 8 stambenih jedinica. Stanovi su raspoređeni kroz tri etaže prizemlje, prvi i drugi kat.
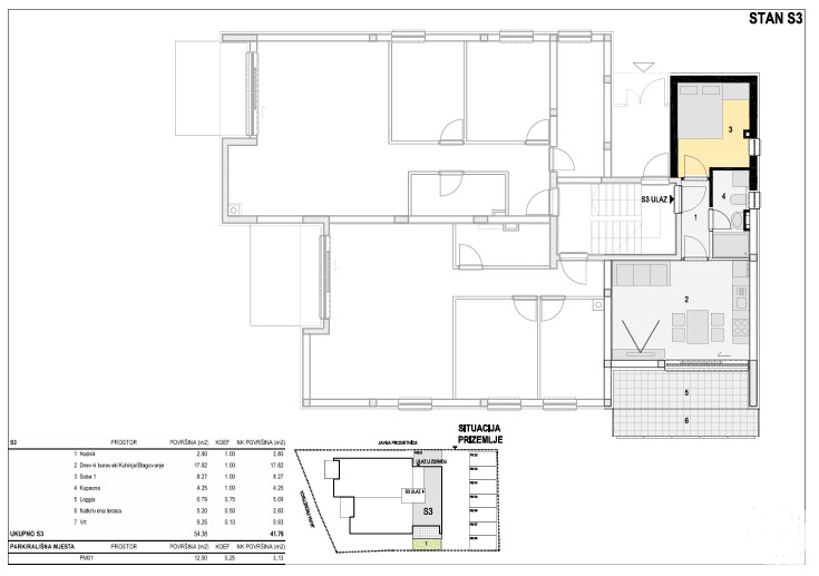
Stan S3 – površine 41,76 m2 u prizemlju sastoji se od: ulaznog hodnika, spavaće sobe, moderno uređene kupaonice, dnevnog boravka povezanog s kuhinjom i blagovaonicom, natkrivene terase. Dodatno, stan ima vlastiti vrt bruto površine 9,25 m2, savršen za boravke na otvorenom, uživanje u ljetnim večerima. Cijena 246,386 €
U izgradnji objekta korišteni su vrhunski materijali i oprema. Apartmani su opremljeni modernim multi-split sustavom klimatizacije i podnim grijanjem, što omogućuje cjelogodišnju ugodu. Ventilirana fasada i očekivani energetski certifikat A+ jamče visoku energetsku učinkovitost i optimalnu potrošnju energije. Stanovi će imati ugrađen; video portafon, video nadzor, te Marazzi keramika, koja pruža sofisticiran izgled i olakšavaju održavanje prostora, Schuco dvoslojna stakla u cijeloj zgradi, Hansgrohe slavine, Laufen sanitarije, itd….
Stan S4 – površine 81,67 m2 na prvom katu sastoji se od: dvije spavaće sobe, dnevnog boravka povezanog s kuhinjom i blagovaonicom, hodnika, kupaonice i terase. Cijena 498.000 €
Stan S1- površine 85,85 m² u prizemlju četverosobni apartman, sastoji se od: tri spavaće sobe, dnevnog boravka povezanog s kuhinjom i blagovaonicom, hodnika, kupaonice i natkrivene terase. Stan uključuje i vlastiti vrt površine 52,95 m2 – savršeno mjesto za uživanje na otvorenom. Cijena 523,500 €
Stan S2 – površine 68,89 m2 u prizemlju, sastoji se od: hodnika, dnevnog boravk povezanog s kuhinjom i blagovaonicom, dvije spavaće sobe, kupaonice, loggie te natkrivene terase s koje se pruža pogled na more. Stanu pripada i vrt… Cijena 420000€
Stan S6 – površine 48,84 m2 površine na prvom katu, sastoji se od: spavaće sobe, dnevnog boravka povezanog s kuhinjom i blagovaonicom, hodnika, kupaonice i natkrivene terase. Cijena 288.156€
Stan S7 – površine 119,78 m² četverosobni apartman na drugom katu sastoji se; dnevnog boravka povezanog s kuhinjom i blagovaonicom, tri spavaće sobe, dvije kupaonice, loggia / terasa s izlazom iz dnevnog boravka, parkirno mjesto. Krovna terasa , savršena za sunčanje, druženja i uživanje u pogledu na more. Priprema za kuhinju i jacuzzi na krovnoj terasi. Cijena 729460 €
Stan S8- površine 104,45 na drugom katu sastoji se od: dvije prostrane spavaće sobe, kuhinje povezane s dnevnim boravkom i blagovaonicom, dvije kupaonice s podnim grijanjem, prostrane krovne terase s očaravajućim pogledom na more. Cijena 657400 €
Ova nekretnine predstavljaju idealnu priliku za miran život uz more, kao i izvrsnu investiciju za turistički najam. Objekt se nalazi na izvrsnoj lokaciji 15 m udaljen od mora i plaže (prvi red), blizina svih potrebnih sadržaja za ugodan odmor!!!
Stanu pripada parkirno mjesto uključeno u cijenu stana. Dokumentacija uredna.
Planirano useljenje 03/2026. godine.
*****************************************************************************
Must Have Properties d.o.o. licencirana je agencija odobrena od strane Ministarstva gospodarstva, poduzetništva i obrta, registrirana pri Hrvatskoj gospodarskoj komori.
Obratite nam se s povjerenjem!
098 9301 860
info@musthaveproperties.hr
Kontaktirajte nas
Za sva pitanja i vaše zahtjeve
stojimo na raspolaganju
Imate pitanja vezana uz nekretninu ili želite dogovoriti razgledavanje nekretnine, javite nam se










