ZAGREB – STENJEVEC / VRAPČE | DVOETAŽNI PENTHOUSE U NOVOGRADNJI
Lokacija
Značajke
Vrsta nekretnine:
Stan
Površina (m²):
97.98
Broj etaža:
Dvoetažni
Broj soba:
4
Grijanje:
Etažno plinsko centralno
Energetski certifikat:
A+
Parking:
Vanjsko nenatkriveno mjesto
Godina izgradnje:
2025
Renovirano:
Opis
Daje se na prodaju atraktivan dvoetažni penthouse u novogradnji, smješten u mirnom dijelu naselja Stenjevec – Vrapče, na lokaciji koja pruža odličnu povezanost s ostatkom grada i blizinu svih važnih sadržaja.
Stan se posebno ističe velikim staklenim stjenkama koje prostoru daju iznimnu prozračnost i obilje prirodnog svjetla, stvarajući ugodan i moderan ambijent za stanovanje. Orijentacija stana je na sjever i zapad.
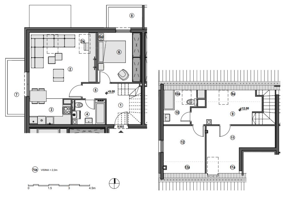
Raspored prostorija
Donja etaža:
-dnevni boravak s blagovaonicom i kuhinjom
-spavaća soba
-kupaonica
-dva balkona
-hodnik/stubište
Gornja etaža:
-dvije spavaće sobe
-kupaonica
-hodnik
Grijanje je centralno etažno na plin, a zgrada ima energetski certifikat A+, što osigurava visoku energetsku učinkovitost i niže troškove stanovanja. Uz stan dolazi jedno parkirno mjesto i spremište, dok se u neposrednoj blizini nalazi i javni parking. Stvarna površina s otvorenim i zatvorenim prostorima iznosi 108.18 m2. Sveukupna prodajna površina stana je 97.99 m2.Zgrada ima kosi krov (crijep).
U blizini nekretnine nalaze se važnije prometnice, trgovine, škola, vrtić, dom zdravlja, autobusne stanice, restorani i ostali sadržaji potrebni za kvalitetan svakodnevni život. Stan je građen od najkvalitetnijih materijala dostupnih na tržištu, a investitor iza projekta ima brojne uspješno realizirane projekte i dugogodišnje iskustvo u gradnji. Ova nekretnina predstavlja izvrsnu priliku za moderan obiteljski život ili sigurnu investiciju u zapadnom dijelu Zagreba.
Kupac ne plaća proviziju!
Za dodatne informacije i dogovor oko razgledavanja stojimo na raspolaganju!
___________________________________________________
Must Have Properties d.o.o. licencirana je agencija odobrena od strane Ministarstva gospodarstva, poduzetništva i obrta registrirana pri Hrvatskoj gospodarskoj komori.
Obratite nam se s povjerenjem!
Anita Martinović
095 7126 400
anita.martinovic@musthaveproperties.hr
Kontaktirajte nas
Za sva pitanja i vaše zahtjeve
stojimo na raspolaganju
Imate pitanja vezana uz nekretninu ili želite dogovoriti razgledavanje nekretnine, javite nam se





